202312 – Broccoli







202309 – RUA DAS TAIPAS
Rehabilitation project in Rua das Taipas, Porto, carried out as a collaborator in Jorge Domingues Arquitectos.








© Model-Ricardo Monteiro / Rendering-João Magalhães
202308 – Anexo 01
Outdoor storage in Ortiga, Fatima, in collaboration with Alice Vieira.




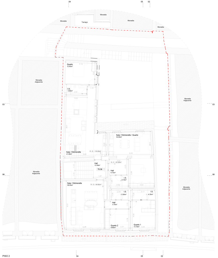
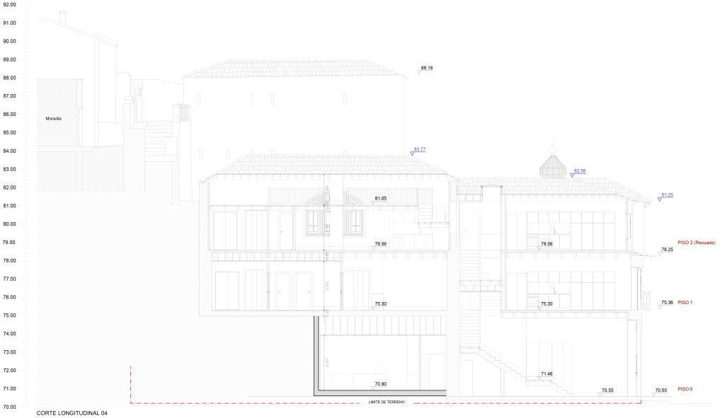
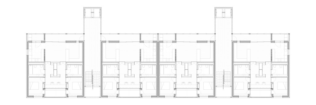
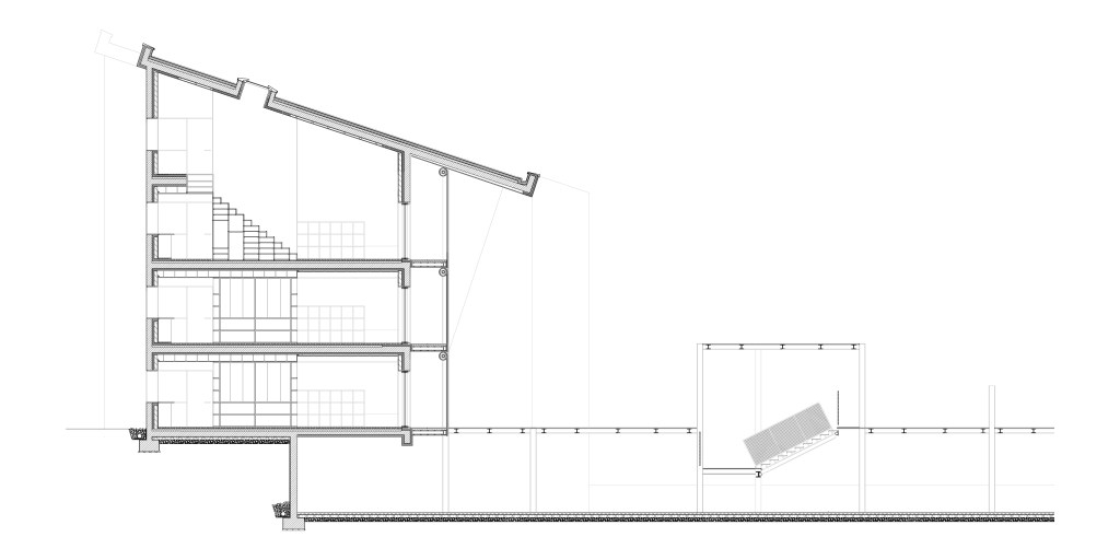
202304 – HOUSE IN ÍLHAVO
Project for a single-family house in Ílhavo, Aveiro, carried out as a collaborator in Jorge Domingues Arquitectos.







© Model-Ricardo Monteiro / Rendering-João Magalhães
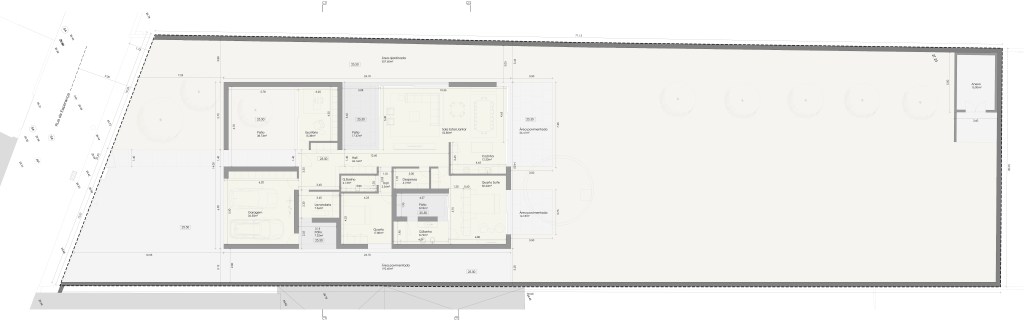
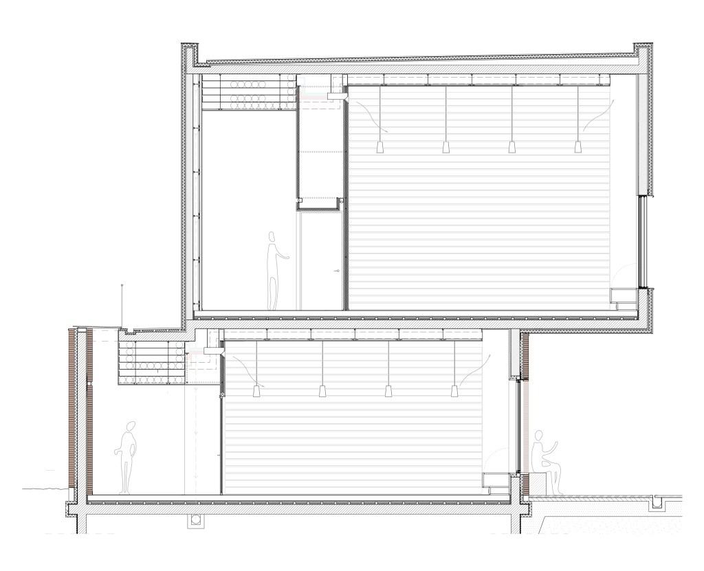
202301 – BRAMANTE
Understanding the complexity of the problem is the key to solving it. The signs of its presence must be proportional to the time it takes. A proportionality of means. A balance. The symbiosis of the elements: structure and cube. The cube needs the structure, while the structure works with or without the cube. But the purpose of the cube is in itself and in the functions assigned to it, while the structure finds in the cube the reason for its existence. Symbiosis – disruption and order – the crystallisation of the moment before collapse.












202209 – BREAD HOUSE
The client said that the activity that defines this place already existed in the environment of the house, but it was not enough to take on this scenario.
Request for the landscape to continue.
A request for a space that welcomes those who arrive and those who live there.
A request for a family place.
A nature that absorbs.
A ruin before it was.
A tone of continuity.
A frame for the existing
A memory that will be created.
An incentive for curiosity.
A roof that shelters.
A wall that protects.
A fire that warms.




Project with Alice Vieira, 2022
202201 – HOUSE IN PEDRAS SALGADAS
Project for a single-family house in Pedras Salgadas, Vila Real, carried out as a collaborator in Jorge Domingues Arquitectos.





202108 – PETIT FOLIES
Porto Design Biennale 2021
[EN]
“Petites Folies sobre o Douro is one of the projects under the satellite activity of the Porto Design Biennale 2021. Presenting a set of site-specific architectural spaces/installations/objects in public space, it rearranges local circumstances and redefines city paths, creating new focal points and contexts for the landscape: Outras Paisagens [other landscapes].” – ESAD
[PT]
“Petites Folies sobre o Douro é uma atividade satélite da Bienal de Design do Porto 2021. Apresenta um conjunto de espaços/instalações/objectos arquitectónicos no espaço público, que reorganizam as circunstâncias locais e redefinem os percursos da cidade, para criar novos pontos focais e contextos para a paisagem: Outras Paisagens.” – ESAD




© ESAD
202010 – SHELTER IN LJUBJANA – WORKSHOP: CITY, SPACE, DEMOCRACY
Request: a modular shelter capable of adapting to different uses.


© Model – Ricardo Monteiro / Rendering – Rodrigo Amaro



202006 – PIXEL – OBJECT
“Faz-se luz pelo processo
de eliminação de sombras
Ora as sombras existem
as sombras têm exaustiva vida própria
não dum e doutro lado da luz mas do próprio seio dela
intensamente amantes loucamente amadas
e espalham pelo chão braços de luz cinzenta
que se introduzem pelo bico nos olhos do homem
Por outro lado a sombra dita a luz
não ilumina realmente os objectos
os objectos vivem às escuras
numa perpétua aurora surrealista
com a qual não podemos contactar
senão como amantes
de olhos fechados
e lâmpadas nos dedos e na boca.”
Mário Cesariny in Faz-se luz pelo processo.


201906 – MUSIC SCHOOL – COLLEGE EXERCISE
PROGRAM
The Program consists of a long-term exercise in which the theme is an urban equipment with large programmatic and textual complexity – music school. The projectual answers reflect the web of relationships that the architectural object established with the territory itself.
The exceptional nature that functionally and iconically characterises the buildings within the differences and peculiarities of urban and territorial contexts, enables them to have a notable leading role.
The nature of these differences results from the history of architecture itself and from the cities, where the distinction of the public building was opposed to the homogeneity and tipification of regular constructions that represented and formed most of the urban environment. Thus, the project exercise requires a capacity of synthesis that has to be built in the complex game of reading scales, of representation and conception and reflected in the uniqueness of the proposal that place the new object in the space that is to be influenced and qualified.
© FAUP











201812 – TOMB FOR FERNANDO PESSOA – ARCHITECTURE COMPETITION
“Qualquer caminho leva a toda a parte
Qualquer ponto é o centro do infinito”
Fernando Pessoa of personality(ies)
His journey from Durban to Lisbon, the city of his upbringing, the city of his education, the place where he received the soul of one of the world’s most famous poets.
The search for a labeling spatiality between city and sea, social diversity in relation to his split personality.
An entrance of appeal and curiosity, claiming something without revealing it. A doorway to a journey of sensations, different spaces, different scales, different personalities.
A wall that leads through, that welcomes shelter or opens up to the sky. Introspection and reflection.
A window that shapes a view of Pessoa’s characterization. Sky, stone, distance.
An arrival, a mirror of water, a centerpiece. A (dis)ordered arrangement that characterizes a static. Death or illusion.
Illusion as the reality of a path that is traveled without being.
A going that is a being.


Project with Alice Vieira, 2018
201806 – COLLECTIVE HOUSING – COLLEGE EXERCISE
COURSE OBJECTIVES
Project 3 takes for granted the methodological skills and tecnical design handling necessarily acquired in previous years, having to test and develop them in order to increase the knowledge and experience of students to a superior level of capabilities and requirements.
Under the general theme of multifamily housing and the city as a framework, are carried out a series of exercises that enhance experimentation, reflection and the ability of materializing extensive projectual knowledge about Design and Architecture.
First of all, to make the general approach of the issues and problems of collective housing, defined as reflection on modes of living, as a test of the definition of programs and development of cell-spaces that reflect, as well as the study the association of these cells by systems and rules that constitute an effective link and empowering capable of contributing clear gains for the individual residence. It also intends, through the study of fires, distribution systems, the associations into modules and the conformation of the building, make informed and consistent choices typological possible. It is also to do so in an urban setting, forcing to study and understand the procedures and training elements of the urban fabric and the identification of their morphology, studying how to carry out a housing program defines substantial, is, alter or rebuild new urban fabric. Thus, the integration of the two components to reflect and understand the interdependence, the dialectical relationship between urban insertion, the urban morphology and architectural typology housing.
The exercises provided are also intended to advance the experience and skills of design students in three key areas: first in the vastness and complexity of the problems with the gradual introduction of programmatic constraints, urban and legal issues that interfere with the process simpler definition of the form exercised in previous years. Second, the particular difficulties and the potential that the joint work at the same time scales from 1 / 1000 to 1 / 2 provides, that is, checking interdependencies and mutual stimulation between the urban and the general design or detail of the buildings . Third, not least, to treat intensively the constructive aspects, both in its general logic or wisdom in detail, students have the opportunity to realize that they must materialize in a rigorous way, the desired construction, constituting more than one mere addition of information, an essential part of the work of shaping the expression of architecture and provide an opportunity for synthesis of language and construction, with implications and effect on larger scales and throughout the final result.
The general framework of these exercises is relatively conservative. It is understood that the approach to the subject of housing and collective or multifamily dwelling goes better with the qualifying of the banal, than the playing with the exceptionality of the speculation, be it programmatic, functional or formal – although not neglecting it. before with the knowing that in it, all students can, without limiting the level of quality or depth, gain strength for other requirements.
© FAUP







201805 – SWARM – ARCHITECTURE COMPETITION
If it were a swarm of bees, it would be no bigger than this desire to communicate – human interaction.
After all, it’s a reuse and renewal of repeated customs.
A deconstruction for a new use.







Project with Alice Vieira, 2018
201802 – FAROL – OBJECT
É o farol que nos guia a inteligência, faróis de ficção, distantes de pensar, faróis distantes.
Luz de desafogo e imaginação.


Project with Alice Vieira, 2018
201709 – PROJECTO(R)
International Architecture Workshop – Sagres, Portugal
[EN]
Sagres, situated in the south of Portugal, is a city of seasonal demand, surviving on tourism-related businesses and therefore mostly focused on appealing to those who visit. The little attention paid to the inhabitants gave the motto to the workshop Projecto(r). With two main principles at its core – offering cultural experiences and qualifying public space – participants and inhabitants joined forces for a week. The final result was an open-air cinema (also intended as a public hanging out spot) that is meant to be used all year round to enrich the cultural scene of Sagres and give residents a meeting space to organise events on and off summer season.
[PT]
Sagres, sul de Portugal, é uma cidade de procura sazonal, sobrevivendo de negócios relacionados com o turismo e, por isso, maioritariamente focada em agradar a quem a visita, não quem permanece. A pouca atenção dada aos habitantes deu o mote para o workshop Projeto(r). Com dois princípios fundamentais – oferecer experiências culturais e qualificar o espaço público – participantes e habitantes uniram esforços durante uma semana. O resultado final foi um cinema ao ar livre (também destinado a ser um local de convívio público) que se pretende utilizar durante todo o ano para enriquecer o panorama cultural de Sagres e proporcionar aos residentes um espaço de encontro para organizar eventos, dentro e fora da época de verão.








© Diogo Borges